Fachgebiet für Entwerfen & Gebäudekunde, Prof. Jacob van Rijs, Technische Universität Berlin
HOUSING - RETHINKING THE SOCIAL
HOUsing: rethinking the social Nachverdichtung und urbane Freiräume, demografischer Wandel, Mehrgenerationenwohnen und Singlehaushalte, Selbstbestimmung und Partizipation, Diversität und Vielfalt von Wohnformen und Nutzungen in städtischen Quartieren, Ferienwohnungen, Verdrängung, Zuzug und Migration.
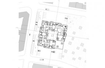
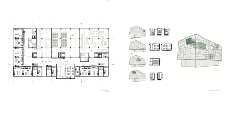
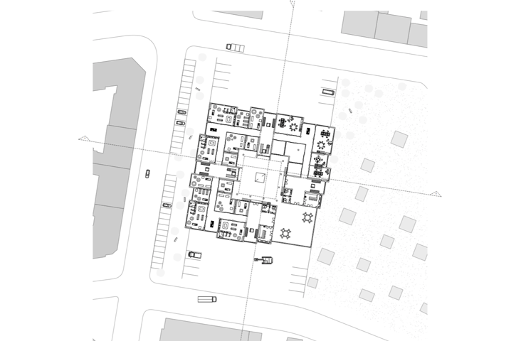
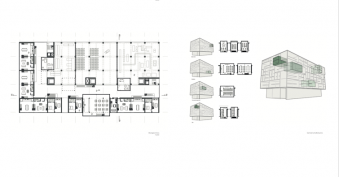
Aufgrund des akuten Wohnbedarfs sollen innerhalb der nächsten zehn Jahre über 100 000 neue Wohnungen in Berlin entstehen. Über eine Wiederbelebung des „sozialen Wohnungsbaus“ soll bezahlbaren Wohnraum auch für Einkommensschwache zugänglich gemacht werden. Aber ist der Fokus auf eine befristete staatliche Förderung von Privateigentum wirklich sozial? Welche anderen gesellschaftlichen Herrausforderungen können und müssen bei Neuplanungen von Wohnraum mit bedacht werden, um einen urbanen sozialen Zusammenhalt und somit nachhaltige Stadtentwicklung voranzutreiben? Welche Konzepte lassen sich z.B. aus der Integration von Wohnen auf Zeit für die Neuplanung von bezahlbaren Wohnraum ableiten?
Ausgehend von der Faszination für radikale, investigative Raumforschung mit einem Fokus auf die Stadtlandschaft und den öffentlichen Raum, sollen der Einfluss der Architektur auf das tägliche Leben der Bewohner und Nutzer hinterfragt, alternative und zukunftsweisende Lösungsansätze erarbeiten, sowie innovative Wohnraumtypologien für Berlin entwickelt werden.