Fachgebiet für Entwerfen & Gebäudekunde, Prof. Jacob van Rijs, Technische Universität Berlin
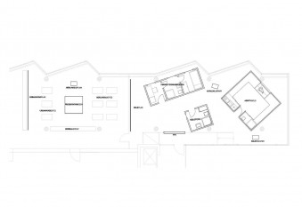
IFA Studio Exhibition
Die Ausstellung im Studio für die diesjährige IfA (Institut für Architektur) Jahresausstellung war in zwei Themenbereiche eingeteilt:
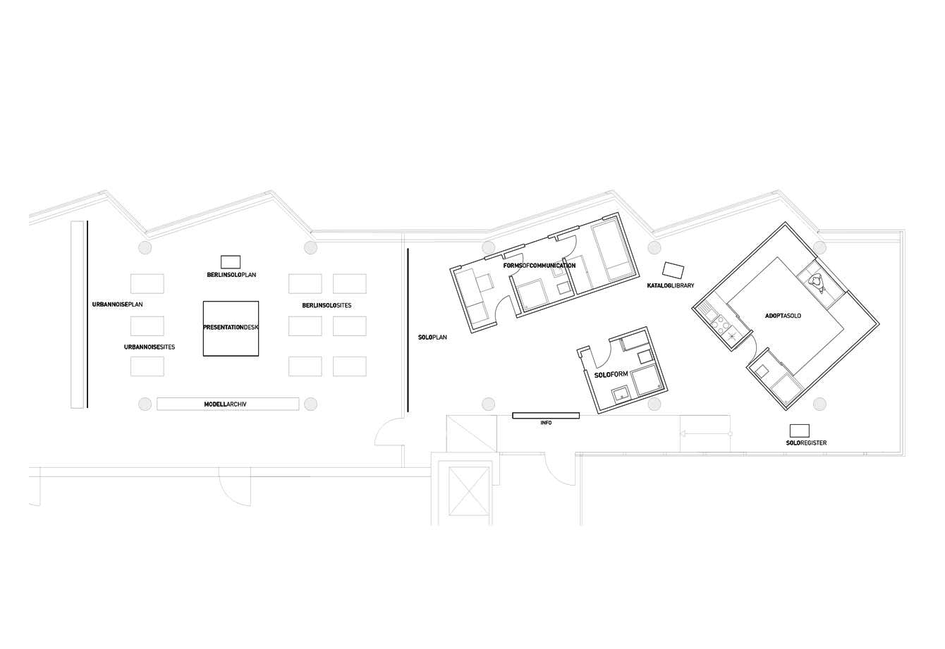
Erster ThemenBereich: der prozess Die Ausstellung im großen Studio zeigt den prozess der Entwurfsarbeit, der hinter den fertig gelayouteten Präsentationsplänen und den sauber gebauten Abgabemodellen steckt.
Die Drei gebauten Wohnprototypen stammen aus dem Grundrisskatalog für Micro Appartments, Den sich die Bachelorstudierenden von „Berlin Solo“ in einem Workshop gemeinsam erarbeitet haben.
SoloRegister innerhalb von 48h sind potentielle Orte und bewohner aufzuspüren
AdoptASolo Jede Entwurfsgruppe Lernt zwei reale Solos kennen und Observiert ihre Lebensweise. die Ergebnisse werden in einer Nahaufnahme aus Datasheet, Zeichenstudie und Fotostudie vermittelt.
SoloForm mit hilfe schneller collagen, modellen und Modellfotos findet eine erste räumliche annäherung an die Sphäre des Persönliches, der Gemeinschaft und der allgemeinheit statt.
Der Katalog dient als open source Werkzeug dazu, erarbeitet Untersuchungen, referenzen und Entwurfsansätze zu bündeln und als Wissensammlung der ganzen Gruppe zur Verfügung zu stellen.
Zweiter Themenbereich: Das Archiv im Nebenstudio werden alle Arbeiten der letzten zwei Semester in einem Archiv ausgestellt. Der Besucher ist eingeladen, die Einzelnen Projekte genauer zu studieren und sie miteinander zu vergleichen .
Bachelor, 3. Semester Im Wintersmester „BerlinSolo“ wurden sechs Grundstücke unterschiedlichster größe bearbeitet. Pro Grundstück gibt es min. 3 Projekte die von jeweils einer Gruppa á vier Studierende entworfen wurden.
master Im Sommersemester „Urban Noise“ standen drei Grundstücke zur auswahl. Pro Grundstück gibt es 3 Projekte di e jeweils von einer Zweiergruppe erarbeitet wurden. Der entwurfs ist mit Tragwerkslehre zu vertiefen.
Die Ausstellung für möglich gemacht durch die großzügige Materialspende der CL- Profile der Firma Richter Systeme