Fachgebiet für Entwerfen & Gebäudekunde, Prof. Jacob van Rijs, Technische Universität Berlin
NEUE FUGGEREI VOLUME FINALE PRÄSENTATION
endpräsentation neue fuggerei master
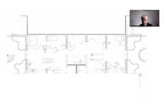
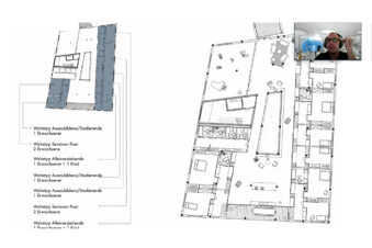
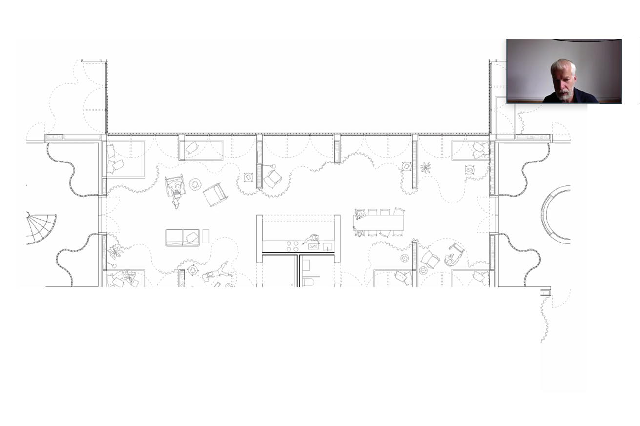
vielen dank und herzlichen glückwunsch an all unsere masterstudierenden, die dieses digitale sommersemester mit uns bestritten haben. mit sehr überzeugenden und klar strukturierten entwürfen habt ihr neue anstösse zu dem thema 500 jahre fuggerei gegeben. die architektonischen herausforderungen unserer zeit fokussieren sich immer mehr auf den zeitgenössischen wohnungsbau und kaum eine andere typologie wird momentan so hitzig diskutiert und überdacht. am diskurs und an den arbeiten dieses semesters zeigen wir auf, wie die student*innen die debatte bearbeitet haben anhand des beispiels neue fuggerei augsburg.
Die augsburger Fuggerei als älteste existierende soziale Wohnsiedlung der Welt wurde 1521 von der Familie Fugger als wohltätige Einrichtung für die Ewigkeit gestiftet. diese soziale einrichtung funktioniert selbst heutzutage noch hervorragend in den komplexen geflechten von investoren, bedürftigen, stadt und individuum. es stellt sich die frage nach der geheimen zutat. wie kommt es, dass diese 1521 gebaute struktur sich unter heutigen problemstellungen immer noch beweisen kann, wo andere architektonische konzepte aus der moderne versagen? der gegenwärtige anspruch an die nachhaltigkeit von neubauten besteht oftmals nicht mehr darin für die ewigkeit zu bauen sondern beschränkt sich leider zu oft auf die nächsten 30 jahre.
was können wir also von der fuggerei lernen? in welchen architektonischen lösungsansätzen sehen wir das potential um gesellschaftliche missstände zu beheben ? wie können wir soziale einrichtungen mit hoher qualität für bedürftige gewährleisten?
vielen herzlichen dank an astrid gabler und angela kesselring, die uns dieses semester ganz besonders unterstützt haben und trotz der digitalen lehre einen spannenden austausch mit den studierenden ermöglicht haben. ausserdem bedanken wir uns bei unseren gastkritiker*innen Björn martenson, florian heinzelmann und sven thorissen, die wir bei unserer endpräsentation begrüssen durften für ihre wertvollen denkanstösse.
ciao ciao und bis hoffentlich bald wieder in der universität!